Warning: SessionHandler::read(): open(/var/www/100500kotlov.ru/data/mod-tmp/sess_787e8ef7c04a6de1ef72aa2d483b36f8, O_RDWR) failed: No space left on device (28) in /var/www/100500kotlov.ru/data/www/kotlom.ru/vendor/symfony/http-foundation/Session/Storage/Proxy/SessionHandlerProxy.php on line 59
Котёл КВ-2,4 МВт — купить в Ульяновске по ЦЕНЕ 769000 рублей
В наличии на складе

Котёл КВ-2,4

Цена
769 000 р.
Доставляем Отопительные котлы
в г. Ульяновск

Кратко о характеристиках

Отапливаемый объем, м³72000
Расход топлива, кг/ч565
ТопливоБурый уголь
ТипКВ

Водогрейный котел КВ-2,4 в Ульяновске – это твердотопливный котельный агрегат высокой мощности, предназначенный для центрального отопления и горячего водоснабжения жилищных, общественных и производственных помещений любой площади. Максимальная температура нагрева воды в котле Котёл КВ-2,4 достигает 115 градусов. За счет большого объема топливной камеры, устройство показывает высокий процент КПД (более 80%).

Характеристики

Аэродинамическое сопротивление, Па (мм. вод. ст.)
420
Конвективная поверхность нагрева, м²
54.8
КПД, не менее, %
85
Масса котла (без воды), кг
4400
Мощность (кВт), кВт
2400
Мощность, Гкал
2.07
Мощность, МВт
2.4
Низшая теплота сгорания топлива, кКал/кг
5
Площадь отопления, м²
24000
Отапливаемый объем, м³
72000
Радиационная поверхность нагрева, м²
26.4
Расход теплоносителя среды, м³/ч
83
Расход топлива, кг/ч
565
Расчетный срок службы, не менее, лет
10
Цена, руб.
769000
Расход условного топлива, кг/ч
403
Температура воды на входе в котёл, не менее, °C
50
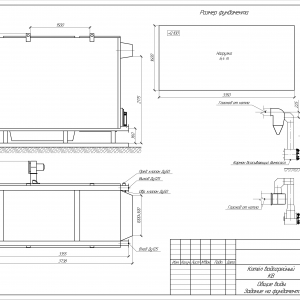
Габаритные размеры (ДхШ), мм
3738*1600*2740
Гидравлическое сопротивление при перепаде t, МПа (кгс/cм²)
0,12
Давление рабочей среды, МПа (кгс/cм²)
0,3-0,6 (3,0-6,0)
Класс котла
2
Номинальное разрежение в топке при работе, Па
20-40
Рабочий график, С 70/95
Температура уходящих газов, °C
180-200
Тяга
Принудительная
Топливо
Бурый уголь, Каменный уголь, Дрова, Пеллеты
Тип
КВ
Марка
КВ-2,4
Комплект
Котёл КВ-2,4
Котёл КВ-2,4
1 штука
Запорная арматура
1 штука
Клапан предохранительный
1 штука
Клапан обратный
1 штука
Термометры в оправе
1 штука
Манометры
1 штука
Краны трехходовые Ду-15
1 штука
Вентили дренажные Ду-20
1 штука
Вентили воздушные Ду-15
1 штука
Вентилятор поддува
1 штука
Как все происходит
на видео
Смотреть видео галерею
Возникли
вопросы?
Закажите консультацию
Или позвоните
8 (800) 551-45-60
Ответим на вопросы
Расскажем о скидках
Презентуем товар
Поможем выбрать
Доставляем Отопительные котлы
в г. Ульяновск

Назначение

Прибор может быть установлен как самостоятельный котельный агрегат, так и работать в связке с другими котлами в модульных установках. Твердотопливный котел серии КВ-2,4 предназначен для центрального отопления и горячего водоснабжения жилищных, общественных и производственных помещений.

Устройство и принцип работы

Устройство твердотопливного котельного агрегата серии КВ-2,4 состоит из топливной и конвективной части. Принцип работы заключается в слоевом сжигании топливной массы. Таким образом, процесс горения происходит не по всей поверхности топливной камеры, а в определенном слое.

Топливо подается в топку, начинается процесс горения, в результате которого выделяется тепло и нагревается система трубопровода. Полученная горячая вода может использоваться как для отопления помещений, так и для обеспечения нужд горячего водоснабжения.

Преимущества

  • Высокий процент КПД (более 80%);
  • Длительность эксплуатации;
  • Возможность автоматизации процессов;
  • Эффективный расход топлива за счет слоевого сжигания;
  • Нет необходимости в предварительной водоподготовке;
  • Вместительность топливной камеры.

Установка и комплектация

Котел серии КВ-2,4 устанавливается согласно схеме отопления. Установкой котельного оборудования могут заниматься только специалисты, обладающие необходимой квалификацией. При установке важно соблюдать нормы СНиП и руководствоваться «Правилами устройства и безопасной эксплуатации паровых и водогрейных котлов».

Котел серии КВ-2,4 поставляется в заводской сборке. В комплекте имеется все необходимое для установки котла, в том числе запорная арматура и контрольно-измерительные приборы.

Схемы и чертежи
Следите за новостями в социальных сетях
Наши цифры
скажут за нас все
10
Срок эксплуатации оборудования – более десяти лет
20
Двадцать лет
трудимся для вас
10
Меньше десяти дней
на изготовление товара
500
Более пятисот
точек поставки
Вы смотрели